Mieszkanie Rumia, ul. Jęczmienna
Rumia Pokaż na mapie ›
Dodane: Piątek, 27 Marzec, 2026 13:32
497 904 zł
8891 zł/m2
Szczegóły ogłoszenia
- Kategoria: Mieszkania / Sprzedaż
- Powierzchnia:56 m2
- Liczba pokoi:3 pokoje
- Zabudowa:Blok
- Piętro :2 piętro
- Rynek:Pierwotny
- Rok budowy:2026
- Sprzedaż:Pośrednik
- Cena: 497 904 zł / 8891 zł/m2
Opis oferty
Szukasz idealnego balansu między miejską infrastrukturą a funkcjonalnym układem wnętrza? To mieszkanie łączy przemyślany projekt z doskonałą lokalizacją.NAJWAŻNIEJSZE ATUTY:
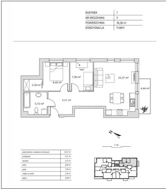
Funkcjonalny układ: 59,58 m² zaprojektowane tak, by maksymalnie wykorzystać każdy metr.
Prywatna garderoba: Rzadkość na tym metrażu – zapomnij o wielkich szafach przytłaczających sypialnię!
Duża łazienka: Blisko 6 m² przestrzeni, która daje pełną swobodę aranżacji (wanna + prysznic).
Lokalizacja: Pierwsza linia zabudowy za kompletem usług (Auchan, Decathlon, Leroy Merlin) – wszystko, czego potrzebujesz, masz w zasięgu krótkiego spaceru.
ROZKŁAD POMIESZCZEŃ:
Przestronny salon z aneksem kuchennym: 23,37 m² (wyjście na balkon 4,44 m²)
Sypialnia główna z wydzieloną garderobą: 8,45 m² + 2,35 m²
Ustawny pokój (biuro/pokój dziecięcy): 7,38 m²
Komfortowa łazienka: 5,72 m²
Przedpokój z miejscem na szafę: 9,31 m²
PARKING:
Dla mieszkańców dostępne są ogólnodostępne miejsca naziemne.
Dla osób ceniących pełen komfort istnieje możliwość zakupu prywatnego garażu w cenie 99 000 zł.
INFORMACJE TECHNICZNE:
Ogrzewanie: nowoczesne grzejniki panelowe.
Termin oddania: 30.09.2026 r. (idealny czas na spokojne zaplanowanie wykończenia).
CENA: 497 904 zł
Zapraszam do kontaktu i rezerwacji – zainwestuj w przyszłość w jednej z najbardziej rozwojowych lokalizacji!
664 - pokaż numer telefonu - Angelika Brillowska
Sprawdź zainteresowanie tym ogłoszeniem
Wyświetlenia
Data dodania
Ostatnio widziany
Obserwujących
Wysłane zapytania
Odsłony telefonu
Powiadom o podobnych ogłoszeniach
Lokalizacja: Rumia
Kategoria: Nieruchomości » Mieszkania » Sprzedaż
Cena: od 423000 zł do 572500 zł Powierzchnia : od 48 m2 do 64 m2
Chcę otrzymywać powiadomienia o nowych ofertach
- Wypromuj ogłoszenie
- Zgłoś naruszenie
- Drukuj ulotkę
- Edytuj/usuń ogłoszenie
- Udostępnij ogłoszenie
- Dodaj na Facebook
































