3 pokojowe na Osiedlu Królewskim!
Rumia Pokaż na mapie ›
Dodane: Poniedziałek, 10 Listopad, 2025 10:33
Promowane Lokalne
635 000 zł
12212 zł/m2
Szczegóły ogłoszenia
- Kategoria: Mieszkania / Sprzedaż
- Powierzchnia:52 m2
- Liczba pokoi:3 pokoje
- Zabudowa:Blok
- Tech. budowy:Cegła
- Piętro :1 piętro
- Liczba pięter:4 piętra
- Rynek:Wtórny
- Rok budowy:2017
- Stan:Do zamieszkania
- Forma kuchni:Aneks
- Sprzedaż:Pośrednik
- Inf. dodatkowe:Balkon, Winda
- Cena: 635 000 zł / 12212 zł/m2
- Ulica: Dębogórska
Opis oferty
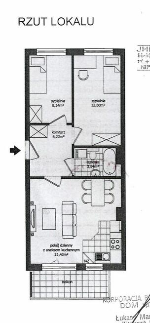
Zapraszamy do odkrycia swojego przyszłego domu - przestronnego, trzypokojowego mieszkania o powierzchni 51,43 m2, czekającego na nowego właściciela.To mieszkanie oferuje jasny pokój dzienny z aneksem kuchennym (21,43 m2) oraz wyjściem na balkon, który jest idealnym miejscem na poranną kawę. Dwie przytulne sypialnie (12,00 m2 i 8,14 m2) zapewniają komfortowy wypoczynek, a funkcjonalna łazienka z nowoczesną kabiną prysznicową (3,64 m2) dopełnia całości. Przestronny przedpokój (6,22 m2) oferuje dodatkowe miejsce do przechowywania.
Lokal został wykończony w bardzo dobrym standardzie. Kuchnia została zaprojektowana na wymiar i wyposażona w najwyższej jakości sprzęt AGD (lodówka, zmywarka, piekarnik, płyta), co czyni gotowanie przyjemnym i funkcjonalnym.
Mieszkanie znajduje się na pierwszym piętrze nowoczesnego, czteropiętrowego budynku z 2017 roku, oferując dwustronną ekspozycję, która zapewnia doskonałe doświetlenie przez cały dzień.
Osiedle jest zamknięte, ciche i nowoczesne, z placem zabaw i pełną infrastrukturą, co stanowi doskonałe miejsce dla rodzin.
Lokalizacja jest doskonała, z łatwym dostępem do komunikacji miejskiej: przystanek autobusowy znajduje się tuż przy osiedlu (linie: 83, 86, J), a kolejny przystanek z linią R do Centrum Gdyni jest zaledwie 500 m dalej. Stacja SKM w odległości około 2 km umożliwia szybkie i wygodne podróżowanie.
Mieszkanie posiada pełną własność z księgą wieczystą i możliwość zakupu na kredyt, co stanowi dodatkową zaletę tej oferty. Jest wolne i gotowe do natychmiastowego wydania, co umożliwia szybkie wprowadzenie się.
Nie przegap tej okazji! Zapraszamy na prezentację tego wyjątkowego mieszkania. To może być Twój nowy dom! Gorąco polecamy!
Sprawdź zainteresowanie tym ogłoszeniem
Wyświetlenia
Data dodania
Ostatnio widziany
Obserwujących
Wysłane zapytania
Odsłony telefonu
Powiadom o podobnych ogłoszeniach
Lokalizacja: Rumia
Kategoria: Nieruchomości » Mieszkania » Sprzedaż
Cena: od 540000 zł do 730500 zł Powierzchnia : od 44 m2 do 60 m2
Chcę otrzymywać powiadomienia o nowych ofertach
- Wypromuj ogłoszenie
- Zgłoś naruszenie
- Drukuj ulotkę
- Edytuj/usuń ogłoszenie
- Udostępnij ogłoszenie
- Dodaj na Facebook





















